黒目川診療所

内科 呼吸器内科 循環器内科 神経内科
駐車場なし
診療時間
月~金 9:00~12:00 13:00~18:00
休診日 土日祝
在宅医療の経験を重ね、2016年10月、東久留米市に黒目川診療所を開設致しました。当院では「なんでも相談できる「かかりつけ医」として様々な理由で通院が困難な方に、在宅で訪問診療を行っております。在宅では、専門科にとらわれず総合医療として患者さまのあらゆるニーズに応えられますように診療しております。定期的な訪問診療を行うことで、患者さまの状態を把握し、慢性疾患の管理や疾病を予防することができます。(ホームページより)
黒目川診療所の近くで
素敵な暮らし見つけてみませんか?
Column貯金がなくても家は購入できます。-

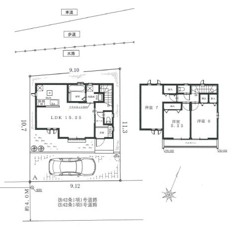
東久留米市下里1丁目 新築戸建 全11棟 1号棟
全区画110㎡以上あるゆとりの開発分譲地 新築戸建 全11棟。1号棟は、南道路で陽当たり良好。西側隣地が畑のため角地のような開放感があります。車種により車2台並列に駐車可能です。2Fに4居室ある4LDK相当の間取り。LDKは16.5帖あり、キッチンサイドにパントリースペースがあります。
価格4090万円住宅ローン100%借入で、月々約円 -

東久留米市下里1丁目 新築戸建 全11棟 11号棟
全区画110㎡以上あるゆとりの開発分譲地 新築戸建 全11棟。11号棟は、南道路で陽当たり良好。車2台並列に駐車可能です。2Fに4室ある4LDKの間取り。LDKは17.0あり、カウンターキッチンからリビングルームが見渡せます。主寝室にウォークインクローゼット。シューズインクローゼットで玄関周りをスッキリ整頓できます。
価格4290万円住宅ローン100%借入で、月々約円
Column子育てに向いている物件とは?-

東久留米市幸町5丁目 土地 全2区 A区
落ち着きある閑静な住宅街。周辺には、マルフジ東久留米店、業務スーパー東久留米店をはじめ、徒歩圏に商業施設が豊富にありお買い物にとても便利な立地です。条件なしの売地のため、お好きなハウスメーカーで建築していただけます。
価格2850万円住宅ローン 土地のみ、月々約円 -

東久留米市幸町5丁目 土地 全2区 B区
落ち着きある閑静な住宅街。周辺には、マルフジ東久留米店、業務スーパー東久留米店をはじめ、徒歩圏に商業施設が豊富にありお買い物にとても便利な立地です。条件なしの売地のため、お好きなハウスメーカーで建築していただけます。
価格2700万円住宅ローン 土地のみ、月々約円
Column今さら聞けない!そもそも住宅ローンって?-

東久留米市幸町5丁目 土地 約50.1坪
落ち着きある閑静な住宅街。周辺には、マルフジ東久留米店、業務スーパー東久留米店をはじめ、徒歩圏に商業施設が豊富にありお買い物にとても便利な立地です。条件なしの売地のため、お好きなハウスメーカーで建築していただけます。
価格4650万円住宅ローン 土地のみ、月々約円 -

東久留米市野火止2丁目 新築戸建 建物フリープラン
南道路で陽当たり良好。敷地約30.4坪の整形地。南道路のほか北側が水路で、建物などなく開放感のある立地です。清瀬駅 徒歩19分のほか、徒歩2分のバス停からも清瀬駅にアクセスできます。掲載の建物プランの場合、土地建物総額で3990万円です。土地のみでもご検討いただけます。
参考価格3990万円住宅ローン100%借入で、月々約円
Column2024年4月から「省エネ性能表示」の努力義務化がスタートします-

東久留米市野火止2丁目 土地
南道路で陽当たり良好。敷地約30.4坪の整形地。南道路のほか北側が水路で、建物などなく開放感のある立地です。清瀬駅 徒歩19分のほか、徒歩2分のバス停からも清瀬駅にアクセスできます。建物参考プラン作成いたします。お気軽にお問い合わせください。
価格2490万円住宅ローン 土地のみ、月々約円 -

東久留米市中央町6丁目 建物フリープラン
南道路の整形地。陽当たり良好です。第一小学校が近く。通りから入った落ち着きある住宅地です。東久留米駅 徒歩23分のほか、徒歩4分のバス停から豊富な便で駅までアクセスできます。掲載の建物プランの場合、建物価格1310万円。総額で3690万円になります。
参考価格3690万円住宅ローン100%借入で、月々約円
Column諸費用って、どういうものがあるの?-

東久留米市下里2丁目 全12区 建物フリープラン No.2
建物フリープラン対応。全12区画。No.2区は、旗竿型の区画。敷地約35.5坪。掲載の建物プランの場合は、建物価格1500万円で、総額3390万円になります。建物の仕様やプランなど、どうぞお気軽にお問い合わせください。土地のみでもご検討いただけます。
参考価格3390万円住宅ローン100%借入で、月々約円 -

清瀬市竹丘2丁目 新築戸建 全3棟 1号棟
清瀬駅 徒歩19分。新築戸建 全3棟。1号棟は、敷地約36.3坪。通りから入った落ち着きある住環境です。延床面積98.32㎡のゆとりの4LDK。LDKは16.5帖あり、和室と合わせると21.0帖の広々空間になります。住宅性能評価、耐震等級「3」の地震に強い家。省エネ性能「ZEH水準」太陽光パネル搭載の家です。
価格4490万円住宅ローン100%借入で、月々約円
Column計画道路とは? 東久留米市の計画道路について-

清瀬市竹丘2丁目 新築戸建 全3棟 3号棟
清瀬駅 徒歩19分。新築戸建 全3棟。3号棟は、敷地約34.1坪。南道路で陽当たり良好。角地で開放感があります。延床面積98.95㎡の4LDK相当の間取り。LDKは20.5帖あり。キッチンサイドにパントリースペースがあります。住宅性能評価、耐震等級「3」の地震に強い家。省エネ性能「ZEH水準」太陽光パネル搭載の家です。
価格4590万円住宅ローン100%借入で、月々約円