東久留米・清瀬の住まいのコンサルタント住まい工房

close
メールアドレス
ログインする
新規登録する
※ブラウザのCookie機能がオフになっていると
ログインできないことがあります。
  • 様宛に
    メールを送信いたしました。

    メールのURLよりログインをお願いいたします。

close

東久留米市小山3丁目 新築戸建 全4棟 1号棟

お気に入り 登録
価格 4980 万円 価格履歴 (1)
  • 敷地面積:135.37m²(約40.95坪)
  • 延床面積:97.59m²(約29.52坪)
  • 間取り:4SLDK

こちらの物件は、通常約170万円の仲介手数料がかかりますが、住まい工房ならゼロ円です。まずはお気軽にお問い合わせください。詳しくは→こちら

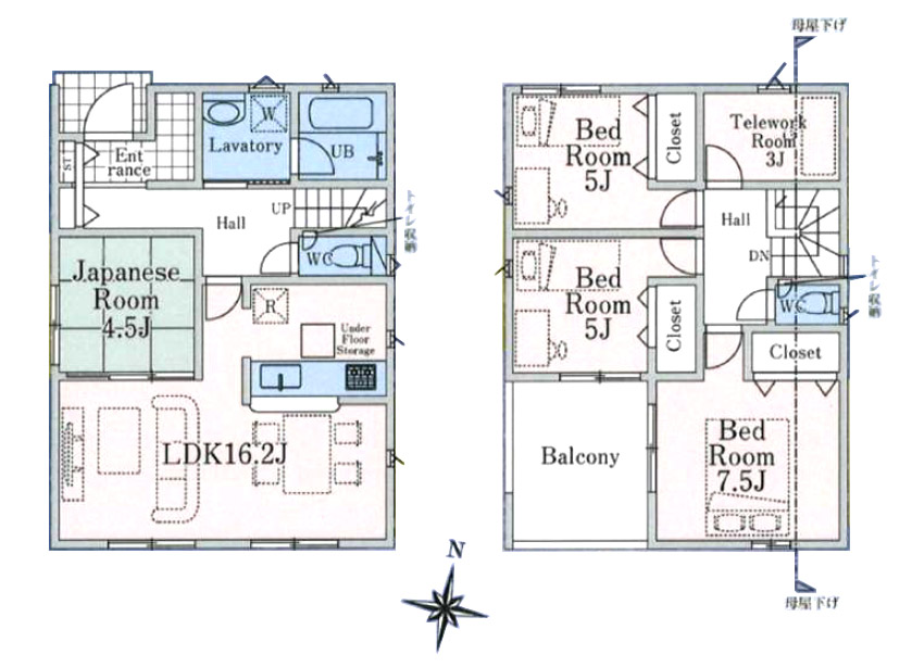
清瀬駅 徒歩12分。新築戸建 全4棟です。1号棟は、約40.9坪のゆとりある敷地。広いカースペースは、車3台並列に駐車可能です。1Fに和室のある4SLDKの間取り。2Fに納戸スペースがあり、収納としても書斎としても利用できます。屋根付きで奥行きの広いインナーバルコニー。太陽光パネル搭載の家です。

こちらの物件は、通常の仲介の場合約170万円の仲介手数料がかかりますが住まい工房ならゼロ円です。
まずはお気軽にお問い合わせください。詳しくは→こちら

清瀬駅のほか、東久留米駅にも徒歩18分でアクセスできる立地です。

間取図 区画図 

間取図
間取図(1号棟)
区画図
区画全体図

清瀬駅のほか、東久留米駅にも徒歩18分でアクセスできる立地です。

物件の特徴や設備

資料請求をする
見学予約をする
お電話によるお問い合わせは 042-420-6607 LINEはこちらから

学区域

    • 小山小学校 600m(約8分) 地図で確認
    • 久留米中学校 1116m(約14分) 地図で確認

周辺施設

  • 光保育園 1148m(約15分)
    地図で
    確認
  • 新堀保育園 815m(約11分)
    地図で
    確認
  • 豊島なでしこ幼稚園 1081m(約14分)
    地図で
    確認
  • こばとの森幼稚園  709m(約9分)
    地図で
    確認
  • スーパーオザム 新堀店 662m(約9分)
    地図で
    確認
  • 西友 清瀬店 1098m(約14分)
    地図で
    確認
  • オーケー清瀬店 817m(約11分)
    地図で
    確認
  • セブンイレブン 新座新堀3丁目店 567m(約8分)
    地図で
    確認
  • ファミリーマート 丸萬清瀬駅南口店 819m(約11分)
    地図で
    確認
  • ドラッグセイムス 新座新堀店 259m(約4分)
    地図で
    確認
  • 駅前図書館 1082m(約14分)
    地図で
    確認
  • とみまつ小児科循環器クリニック 1048m(約14分)
    地図で
    確認
  • 宮本医院 981m(約13分)
    地図で
    確認
  • 小山台遺跡公園 770m(約10分)
    地図で
    確認
  • 小山れんげ公園 963m(約13分)
    地図で
    確認
  • スターバックスコーヒー 清瀬駅前店 965m(約13分)
    地図で
    確認
  • ドコモショップ清瀬店 761m(約10分)
    地図で
    確認

こちらの物件は、通常の仲介の場合約170万円の仲介手数料がかかりますが住まい工房ならゼロ円です。
まずはお気軽にお問い合わせください。詳しくは→こちら

こちらの物件は、通常約170万円の仲介手数料がかかりますが、住まい工房ならゼロ円です。まずはお気軽にお問い合わせください。詳しくは→こちら

資料請求をする
見学予約をする
お電話によるお問い合わせは 042-420-6607 LINEはこちらから

住宅ローンシミュレーション

  • 借入金額
  • 万円
  • 期間
  • 金利
  • の場合
  • 月々約
上記のお支払例の初期値は、都市銀行で物件価格100%のお借入、期間35年、金利:変動金利(優遇後)ボーナス払いなしで算出しています。
不動産購入には物件価格のほかに別途諸費用がかかります。※およそ物件価格の6~8%が目安です。
借入金額、期間、金利を変更できます。

物件詳細

  • 住所
    東京都東久留米市小山3丁目7-22 MAP
    交通
    西武池袋線「清瀬」駅 徒歩12分
    西武池袋線「東久留米」駅 徒歩18分
    間取り
    4SLDK
    土地面積
    135.37m²
    建物面積
    97.59m²
    建ぺい率
    40%
    容積率
    80%
    接道
    北側約5m(公道)
    駐車場
    3台
    総戸数
    4戸
  • 土地権利
    所有権
    構造
    木造 地上2階建て
    完成予定
    令和08年02月
    土地形
    整形地
    地勢
    平坦
    地目
    宅地
    都市計画
    市街化区域
    用途地域
    第一種低層住居専用地域
    現況
    未完成
    引渡
    予定(2026年2月)
    建築確認番号
    第25UDI1W建00519号
    ハザードマップ
    Lv.1(0.1m~0.5m)
    取引態様
    媒介
資料請求をする
見学予約をする
お電話によるお問い合わせは 042-420-6607 LINEはこちらから

ほかの号棟、区画区画図区画全体図

問い合わせる

登録したお気に入り物件は
ページ上部のお気に入りアイコン
から確認できます。

こちらの物件もおすすめ
  • 特徴が似ている物件
    東久留米市下里5丁目 新築戸建 全13棟 2号棟
    4530 万円
    新築戸建 全13棟。通り抜けのできない、交通量の少ないとても落ち着きある住環境です。2号棟は、敷地約37.6坪。南東向きで陽当たり良好。車2台並列に駐車可能です。延床面積97.18㎡。1Fに和室のある4LDK。2Fに浴室と洗面室を配置して、1F居住スペースを広くとった間取りです。太陽光パネル搭載の家です。

    東久留米市下里5丁目4-11

    東久留米駅 バス 14分 「氷川神社」停 3分 ほか

    建物:97.18m² 土地:124.52 m² 4LDK

  • 場所が近くの物件
    東久留米市氷川台2丁目 新築戸建 全2棟 2号棟
    5298 万円
    東久留米駅 徒歩14分。区画整理された大変落ち着きある住宅地。南道路の整形地で、陽当たり良好の新築戸建 全2棟。2号棟は、収納豊富な3SLDK。家族のつながりを感じられるリビングイン階段の間取り。2Fに納戸スペース。主寝室にはウォークインクローゼットがあります。

    東久留米市氷川台2丁目19-4

    東久留米駅 徒歩 14分 ほか

    建物:86.5m² 土地:108.63 m² 3SLDK

  • 価格が近い物件
    東久留米市小山3丁目 新築戸建 全4棟 2号棟
    4980 万円
    清瀬駅 徒歩12分。新築戸建 全4棟です。2号棟は、約40.9坪のゆとりある敷地。広いカースペースは、車3台並列に駐車可能です。1Fに畳コーナーのある3SLDKの間取り。2Fに納戸スペースがあり、収納としても書斎としても利用できます。屋根付きで奥行きの広いインナーバルコニー。太陽光パネル搭載の家です。

    東久留米市小山3丁目7-22

    清瀬駅 徒歩 12分 ほか

    建物:98.81m² 土地:135.36 m² 3SLDK