|
ログインする
|
新規登録する
|
様宛に
メールを送信いたしました。
メールのURLよりログインをお願いいたします。

東久留米市下里2丁目16
東久留米駅 バス 14分 「都大橋」停 10分 ほか
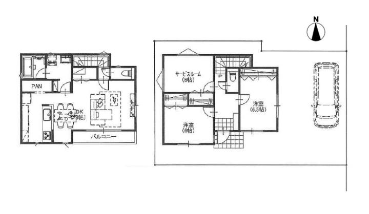
建物:90.72m² 土地:115.02 m² 3LDK

東久留米市小山4丁目
清瀬駅 徒歩 13分 ほか
土地:111.81 m²

東久留米市前沢3丁目5
花小金井駅 バス 7分 「前沢住宅」停 4分 ほか
建物:100.19m² 土地:127.19 m² 4SLDK