|
ログインする
|
新規登録する
|
様宛に
メールを送信いたしました。
メールのURLよりログインをお願いいたします。

こちらの物件は、通常約124万円の仲介手数料がかかりますが、住まい工房ならゼロ円です。まずはお気軽にお問い合わせください。詳しくは→こちら

こちらの物件は、通常の仲介の場合約124万円の仲介手数料がかかりますが住まい工房ならゼロ円です。
まずはお気軽にお問い合わせください。詳しくは→こちら
通りから入った落ち着きある住環境です。
通りから入った落ち着きある住環境です。
資料請求をする |
見学予約をする |
![]() |
清明小学校 392m(約5分) | 地図で確認 |
![]() |
清瀬第三中学校 910m(約12分) | 地図で確認 |
| 清瀬市立第3保育園 189m(約3分) | 地図で 確認 |
| 清瀬ひかり幼稚園(認定こども園ひかり) 641m(約9分) | 地図で 確認 |
![]() | ビッグ・エー 清瀬旭が丘団地店 705m(約9分) | 地図で 確認 |
| デイリーヤマザキ 清瀬台田団地店 672m(約9分) | 地図で 確認 |
| セブンイレブン 清瀬下宿2丁目店 138m(約2分) | 地図で 確認 |
| スギドラッグ 清瀬旭が丘店 666m(約9分) | 地図で 確認 |
| 下宿図書館(下宿地域市民センター) 663m(約9分) | 地図で 確認 |
| 清瀬下宿中央診療所 705m(約9分) | 地図で 確認 |
| 清瀬旭が丘郵便局 754m(約10分) | 地図で 確認 |

こちらの物件は、通常の仲介の場合約124万円の仲介手数料がかかりますが住まい工房ならゼロ円です。
まずはお気軽にお問い合わせください。詳しくは→こちら

こちらの物件は、通常約124万円の仲介手数料がかかりますが、住まい工房ならゼロ円です。まずはお気軽にお問い合わせください。詳しくは→こちら
資料請求をする |
見学予約をする |
資料請求をする |
見学予約をする |

|
清瀬市下宿2丁目 新築戸建 全19棟 1号棟
3880万円
全19棟の大型開発分譲地。1号棟は、南向きの角地で陽当たりとても良好。開放感のある立地です。敷地約36.7坪。車2台並列に駐車可能です。延床面積109.55㎡のゆとりの3LDK。屋根付きのインナーバルコニー。キッチンと洗面室の間にランドリールーム。シューズインクローゼットで玄関周りをスッキリ整頓できます。
|
|
清瀬市下宿2丁目 新築戸建 全19棟 2号棟
3780万円
全19棟の大型開発分譲地。2号棟は、南西向きで陽当たり良好。敷地約37.4坪の整形地。車2台並列に駐車可能です。延床面積102.87㎡。2Fに4居室ある4SLDKの間取り。1Fは、約16.0帖のLDKのほか、ストレージルーム、ファミリークローゼットがあります。土間収納のある広い玄関スペース。奥行きの広いワイドタイプのバルコニーなど。
|
|
清瀬市下宿2丁目 新築戸建 全19棟 3号棟
3780万円
全19棟の大型開発分譲地。3号棟は、南西向きで陽当たり良好。敷地約37.4坪の整形地。車2台並列に駐車可能です。延床面積103.68㎡。2Fに4居室ある4SLDKの間取り。1Fは、約15.65帖のLDKのほか、ストレージルームがあります。収納が豊富な玄関スペース。奥行きの広いワイドタイプのバルコニーなど。
|
|
清瀬市下宿2丁目 新築戸建 全19棟 4号棟
3880万円
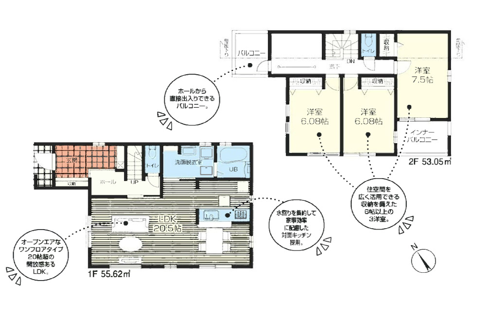
全19棟の大型開発分譲地。4号棟は、南西向きで陽当たり良好。角地で開放感のある区画です。車2台並列に駐車可能です。延床面積110.97㎡。家族のつながりを感じられるリビングスルータイプの間取り。LDKは16.0帖あり、洋室と合わせると20.5帖の広々空間です。屋根付きで奥行きの広いインナーバルコニー。
|
|
清瀬市下宿2丁目 売地 全19区 5号地
2500万円
全19区画の大型開発分譲地。5号地は、敷地約36.3坪。角地で開放感のある立地です。建物参考プランもございます。条件なしの売地としてもご検討いただけます。
|
|
清瀬市下宿2丁目 新築戸建 全19棟 6号棟
3580万円
全19棟の大型開発分譲地。6号棟は、敷地約36.3坪の整形地。車2台並列に駐車可能です。延床面積104.08㎡の3SLDK。LDKは約17.0帖あり、畳コーナーを合わせると約20.0帖の広々空間です。キッチンサイドに2WAYのパントリー。屋根付きで奥行きが広く利用しやすいインナーバルコニー。
|
|
清瀬市下宿2丁目 新築戸建 全19棟 7号棟
3780万円
全19棟の大型開発分譲地。7号棟は、敷地約36.3坪。南東向きで陽当たり良好。角地で開放感のある区画です。車2台別々に駐車可能です。延床面積100.84㎡の3SLDK。約20.75帖の広々LDK。12.0帖の主寝室にはウォークインクローゼットを完備。玄関ホールや洗面室が広くゆとりがあります。
|
|
清瀬市下宿2丁目 新築戸建 全19棟 8号棟
3980万円
全19棟の大型開発分譲地。8号棟は、南向きの角地で陽当たりとても良好。開放感のある立地です。敷地約36.3坪。車2台駐車可能です。延床面積103.68㎡のゆとりの3LDK。約18.62帖の広々リビングルーム。カウンターキッチンからリビングルームが見渡せます。2F南側洋室は約11.5帖あり、第2リビングのように家族で利用できます。
|
|
清瀬市下宿2丁目 新築戸建 全19棟 9号棟
3880万円
全19棟の大型開発分譲地。9号棟は、南西向きで陽当たり良好。敷地約36.3坪の整形地。車2台並列に駐車可能です。延床面積98.82㎡。全室6帖以上の3SLDK。家族のつながりを感じられるリビングスルータイプの間取り。LDKは約19.0帖。洗面室横にランドリールーム。奥行きの広いルーフバルコニー。
|
|
清瀬市下宿2丁目 新築戸建 全19棟 10号棟
3980万円
全19棟の大型開発分譲地。10号棟は、南西向きで陽当たり良好。角地で開放感のある区画です。車2台並列に駐車可能です。延床面積110.16㎡。1Fに畳コーナーのある3SLDKの間取り。2Fは全室6帖以上ありゆとりがあります。屋根付きで奥行きの広いインナーバルコニー。
|
|
清瀬市下宿2丁目 売地 全19区 11号地
2500万円
全19区画の大型開発分譲地。11号地は、敷地約36.3坪。角地で開放感のある立地です。建物参考プランもございます。条件なしの売地としてもご検討いただけます。
|
|
清瀬市下宿2丁目 新築戸建 全19棟 12号棟
3680万円
全19棟の大型開発分譲地。12号棟は、敷地約36.3坪の整形地。車2台並列に駐車可能です。延床面積103.27㎡の4LDK。LDKは約17.0帖あり、カウンターキッチンからリビングルームが見渡せます。広くて開放感のあるルーフバルコニー。広いシューズインクローゼットがあり玄関周りをスッキリ整頓できます。
|
|
清瀬市下宿2丁目 新築戸建 全19棟 13号棟
3680万円
全19棟の大型開発分譲地。13号棟は、敷地約36.3坪の整形地。車2台並列に駐車可能です。延床面積102.87㎡。1Fに畳コーナーのある3SLDKの間取り。LDKは約19.5帖あり、畳コーナーと合わせて約23.0帖の広々空間です。奥行きが広く開放感のあるワイドタイプのバルコニー。
|
|
清瀬市下宿2丁目 新築戸建 全19棟 14号棟
3380万円
全19棟の大型開発分譲地。14号棟は、敷地約36.6坪。延床面積106.11㎡。1Fに畳コーナーのある4SLDK。LDKは約17.5帖あり、畳コーナーと合わせて約21.25帖の広々空間です。2F北側洋室は続き間になっていて、そのまま広く第2リビングのようにも、将来的に2部屋にもできるフレキシブルな間取りです。
|
|
清瀬市下宿2丁目 新築戸建 全19棟 15号棟
3480万円
全19棟の大型開発分譲地。15号棟は、敷地約36.6坪。旗竿型の敷地ですが、南向きの広いお庭がありその分陽当たり良好です。延床面積102.06㎡。2Fに4居室ある4LDK。LDKは約17.5帖あり、カウンターキッチンからリビングルームが見渡せます。キッチンサイドにファミリークローゼットがありパントリーとしても利用できます。
|
|
清瀬市下宿2丁目 新築戸建 全19棟 16号棟
3880万円
全19棟の大型開発分譲地。16号棟は、敷地約36.3坪。南西向きで陽当たり良好です。角地のため開放感があります。車2台並列に駐車可能です。延床面積115.02㎡のゆとりの4LDK。LDKは約18.0帖あり、隣の洋室も合わせると約24.0帖の広々空間です。屋根付きで広く利用しやすいインナーバルコニー。シューズインクローゼットで玄関周りをスッキリ整頓できます。
|
|
清瀬市下宿2丁目 新築戸建 全19棟 17号棟
3580万円
全19棟の大型開発分譲地。17号棟は、敷地約36.3坪。車2台並列に駐車可能です。延床面積102.06㎡。全室南向き。全室6.5帖以上のゆとりの3LDK。LDKは、広々20.75帖あり、キッチンサイドにパントリースペースがあります。バルコニーは2面あり、奥行きの広いワイドタイプです。
|
|
清瀬市下宿2丁目 新築戸建 全19棟 19号棟
3780万円
全19棟の大型開発分譲地。19号棟は、敷地約37.3坪。角地で開放感のある立地です。車2台別々に駐車可能です。延床面積105.03㎡。1Fは、18.0帖のLDKのほか、独立した4.5帖の洋室があります。2F廊下に納戸スペース。主寝室は広々9.12帖あります。奥行きが広く開放感のあるワイドバルコニー。
|
|
×
※「確認日」は住まい工房で確認のとれた 閉じる
|
登録したお気に入り物件は
ページ上部のお気に入りアイコン
から確認できます。

清瀬市下宿2丁目461-1
清瀬駅 バス 15分 「団地センター」停 11分 ほか
建物:102.06m² 土地:120.09 m² 3LDK

清瀬市下宿2丁目431-10
清瀬駅 バス 9分 「団地交番前」停 6分 ほか
建物:103.68m² 土地:120 m² 4SLDK

清瀬市下宿2丁目461-1
清瀬駅 バス 15分 「団地センター」停 11分 ほか
建物:104.08m² 土地:120.1 m² 3SLDK