|
ログインする
|
新規登録する
|
様宛に
メールを送信いたしました。
メールのURLよりログインをお願いいたします。

東久留米市下里2丁目16
東久留米駅 バス 14分 「都大橋」停 10分 ほか
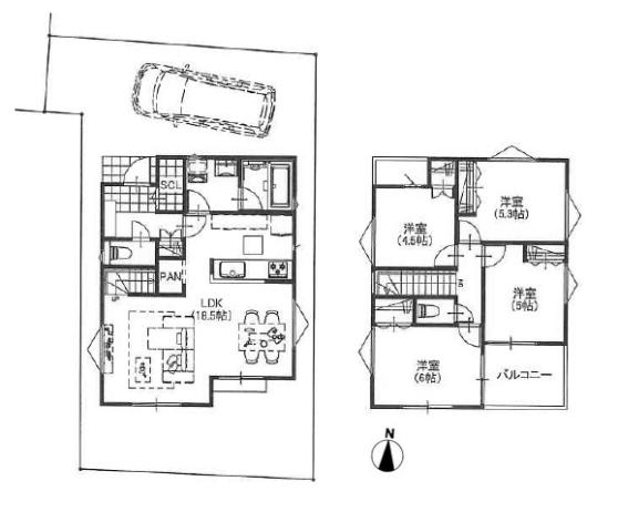
建物:90.72m² 土地:110.03 m² 4LDK

東久留米市浅間町3丁目2-3
ひばりヶ丘駅 徒歩 8分 ほか
建物:78.54m² 土地:99.03 m² 3LDK

清瀬市下宿2丁目461-1
清瀬駅 バス 15分 「団地センター」停 11分 ほか
建物:102.87m² 土地:123.92 m² 4SLDK