|
ログインする
|
新規登録する
|
様宛に
メールを送信いたしました。
メールのURLよりログインをお願いいたします。
土地価格1990万円
上記参考価格は掲載プランの建物を建てた場合の総額を表示しています

こちらの物件は、通常約121万円の仲介手数料がかかりますが、住まい工房ならゼロ円です。まずはお気軽にお問い合わせください。詳しくは→こちら

こちらの物件は、通常の仲介の場合約121万円の仲介手数料がかかりますが住まい工房ならゼロ円です。
まずはお気軽にお問い合わせください。詳しくは→こちら
所沢街道から少し入った落ち着きある住環境です。土地のみの場合は、ブロックフェンス費用、上下水ガスの引込み費用などが別途かかります。
所沢街道から少し入った落ち着きある住環境です。土地のみの場合は、ブロックフェンス費用、上下水ガスの引込み費用などが別途かかります。
資料請求をする |
見学予約をする |
![]() |
第七小学校 745m(約10分) | 地図で確認 |
![]() |
下里中学校 992m(約13分) | 地図で確認 |
| はくさん保育園 674m(約9分) | 地図で 確認 |
| 滝山しおん保育園 681m(約9分) | 地図で 確認 |
| 西友 滝山店 733m(約10分) | 地図で 確認 |
| ビッグ・エー 東久留米下里店 257m(約4分) | 地図で 確認 |
| ローソン 東久留米滝山七丁目店 542m(約7分) | 地図で 確認 |
| ローソンストア100 東久留米八幡町2丁目店 127m(約2分) | 地図で 確認 |
| サンドラッグ 滝山店 380m(約5分) | 地図で 確認 |
| 前田病院 859m(約11分) | 地図で 確認 |
| 飯田医院 525m(約7分) | 地図で 確認 |
| 白山公園 616m(約8分) | 地図で 確認 |
| すいせん公園 650m(約9分) | 地図で 確認 |

こちらの物件は、通常の仲介の場合約121万円の仲介手数料がかかりますが住まい工房ならゼロ円です。
まずはお気軽にお問い合わせください。詳しくは→こちら

こちらの物件は、通常約121万円の仲介手数料がかかりますが、住まい工房ならゼロ円です。まずはお気軽にお問い合わせください。詳しくは→こちら
資料請求をする |
見学予約をする |
資料請求をする |
見学予約をする |

![]() |
東久留米市下里2丁目 全12区 建物フリープラン No.1
3790万円
建物フリープラン対応。全12区画。No.1区は、東道路のほぼ整形地。敷地約34.7坪。掲載の建物プランの場合は、建物価格1500万円で、総額3790万円になります。建物の仕様やプランなど、どうぞお気軽にお問い合わせください。土地のみでもご検討いただけます。
|
![]() |
東久留米市下里2丁目 全12区 建物フリープラン No.2
3390万円
建物フリープラン対応。全12区画。No.2区は、旗竿型の区画。敷地約35.5坪。掲載の建物プランの場合は、建物価格1500万円で、総額3390万円になります。建物の仕様やプランなど、どうぞお気軽にお問い合わせください。土地のみでもご検討いただけます。
|
![]() |
東久留米市下里2丁目 全12区 建物フリープラン No.4
3990万円
建物フリープラン対応。全12区画。No.4区は、東道路のほぼ整形地。敷地約34.7坪。南側隣地通路のため陽当たり良好です。掲載の建物プランの場合は、建物価格1500万円で、総額3990万円になります。建物の仕様やプランなど、どうぞお気軽にお問い合わせください。土地のみでもご検討いただけます。
|
![]() |
東久留米市下里2丁目 全12区 建物フリープラン No.5
3790万円
建物フリープラン対応。全12区画。No.5区は、東道路のほぼ整形地。敷地約34.7坪。掲載の建物プランの場合は、建物価格1500万円で、総額3790万円になります。建物の仕様やプランなど、どうぞお気軽にお問い合わせください。土地のみでもご検討いただけます。
|
![]() |
東久留米市下里2丁目 全12区 建物フリープラン No.6
3390万円
建物フリープラン対応。全12区画。No.6区は、旗竿型の区画。敷地約35.5坪。掲載の建物プランの場合は、建物価格1500万円で、総額3390万円になります。建物の仕様やプランなど、どうぞお気軽にお問い合わせください。土地のみでもご検討いただけます。
|
|
×
※「確認日」は住まい工房で確認のとれた 閉じる
|
登録したお気に入り物件は
ページ上部のお気に入りアイコン
から確認できます。

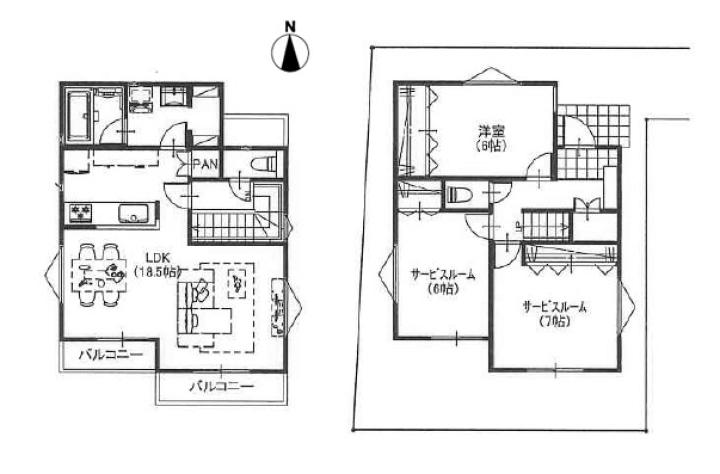
東久留米市下里2丁目16
東久留米駅 バス 14分 「都大橋」停 10分 ほか
建物:90.72m² 土地:117.53 m² 3LDK

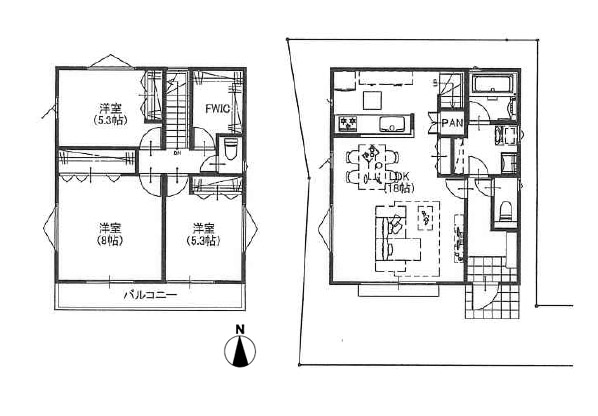
東久留米市滝山7丁目16-2
花小金井駅 バス 10分 「団地センター」停 8分 ほか
建物:88.18m² 土地:105.69 m² 3LDK

清瀬市下宿2丁目461-1
清瀬駅 バス 15分 「団地センター」停 11分 ほか
建物:102.06m² 土地:120.11 m² 4LDK